220m²
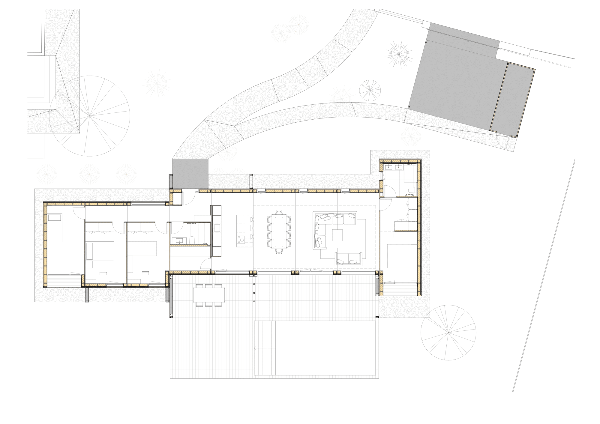
La vivienda unifamiliar El Zorongo, ha sido proyectada bajo criterios de diseño y construcción Passivhaus. Se trata de un edificio de 220 m2 construidos en una sola planta,
nueve módulos diseñados bajo estándares de alta eficiencia y bajo impacto ambiental. La vivienda se distribuye en zona de día en la nave central y las zonas de noche en los extremos. Se trata de una vivienda muy luminosa gracias a los numerosos ventanales de altas prestaciones técnicas. Destaca en el diseño interior el foseado del salón con iluminación led. La combinación de madera natural vista y paredes lisas es la mezcla perfecta entre calidez y minimalismo. Se ha elegido un suelo vinílico machihembrado de altas prestaciones con efecto hormigón en la totalidad de la vivienda aportando un toque más industrial y dando continuidad. En el exterior, porche modular dividido en zona cenador y zona de descanso y solárium, destaca el uso de madera tecnológica y la piscina también prefabricada. En el exterior, destacan los caminos orgánicos entorno a la vivienda que dialogan con la edificación preexistente, el garaje y el jardín delantero y piscina. Se instalan placas fotovoltaicas en la cubierta del garaje aportando auto eficiencia energética. Una vivienda única y singular para unos clientes que confiaron plenamente en el criterio de nuestro equipo de profesionales desde el principio.
Unifamiliar pasivo
TIPOLOGÍA
Vivienda
SUPERFICIE
220m²
