Logo Scroll

CAMPRODÓN

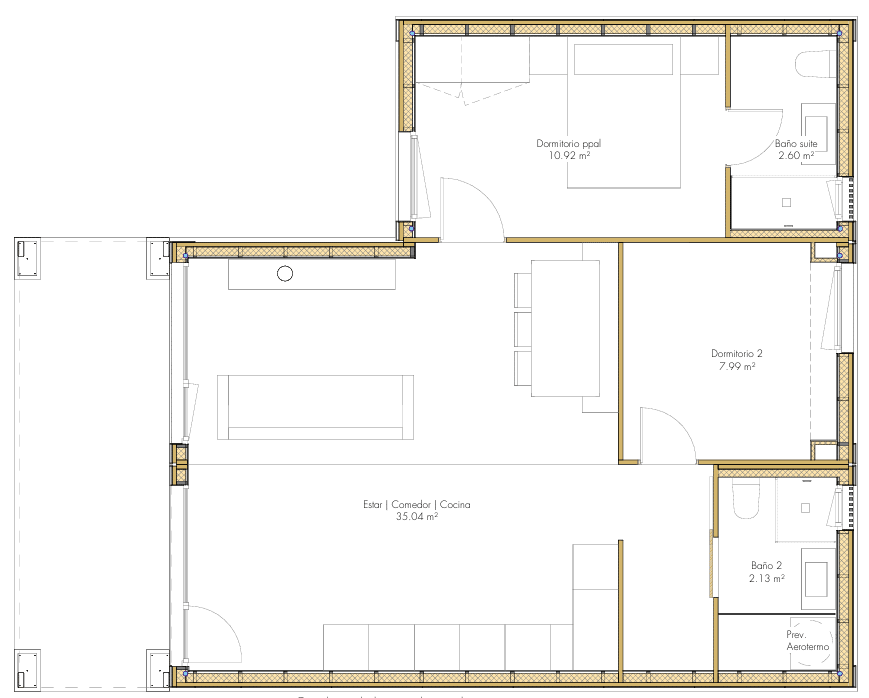
Vivienda de construcción modular de 84 m² en pleno Pirineo catalán. Diseñada por su propietaria —arquitecta— se construye de forma 100% offsite en tiempo récord bajo nuestro concepto DIY Minimal (Do it your Minimal) que permite entregar edificios modulares con estructura y envolvente únicamente. De esta forma el propio cliente o una empresa local pueden terminar instalaciones y acabados interiores. Compuesta por 3 módulos ensamblados in situ y con un porche modular que se adhiere a dos de ellos. Destaca la fachada personalizada en colores moca y óxido con el objetivo de lograr una adecuada integración en el entorno del Pirineo. Un claro ejemplo de cómo la construcción industrializada no está reñida con la alta calidad y alto nivel de personalización, donde confort, sostenibilidad y eficiencia marcan la diferencia.

PROYECTO

Vivienda modular DIY

TIPOLOGÍA

Residencial

SUPERFICIE

Formulario

Haz clic o arrastra un archivo a esta área para subirlo.